siedziba firmy
ul. Twardowskiego 65
30-346, Kraków
12 300 40 00
dział sprzedaży
ul. Twardowskiego 65
30-346, Kraków
12 300 40 10
terenowy dział sprzedaży
ul. Myśliwska naprzeciw budynku 68c
30-718, Kraków
12 300 40 19
dział obsługi posprzedażowej
ul. Twardowskiego 65
30-346, Kraków
12 300 40 50
Renata Sendor

kierownik działu sprzedaży

Daniel Mazur

specjalista ds. sprzedaży

Monika Iwan

specjalista ds. sprzedaży

Kinga Trąbińska

specjalista ds. sprzedaży

Copyright © 2026 - Grupa Deweloperska START
Republiki Korczakowskiej 21/10
Termin realizacji: zrealizowana
Pokoje
3
Metraż
58,08 
Nr piętra
2
Status Lokalu
Wolne
Kierunek
Wschód-Południowy-zachód
Cechy lokalu
loggia
Zobacz
Spacer wirtualny
Cena brutto/m²
17 500 zł
Cena brutto
1 016 400 zł
Uwaga! Ponadto do zapłaty kwota 34 440 zł za dodatkowe wyposażenie lokalu
Uwaga! Sprzedaż mieszkań wyłącznie z miejscem postojowym na samochód lub motocykl
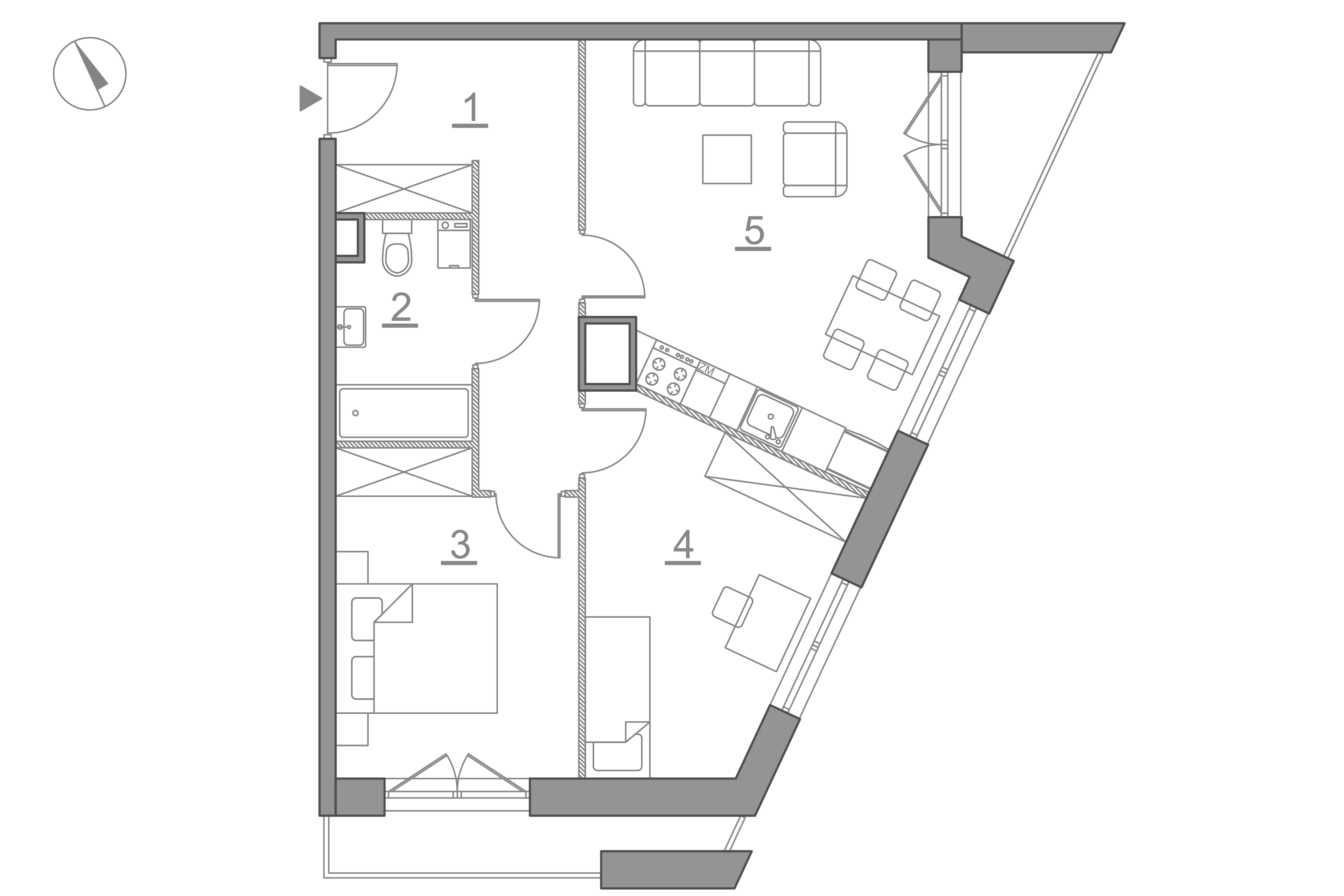
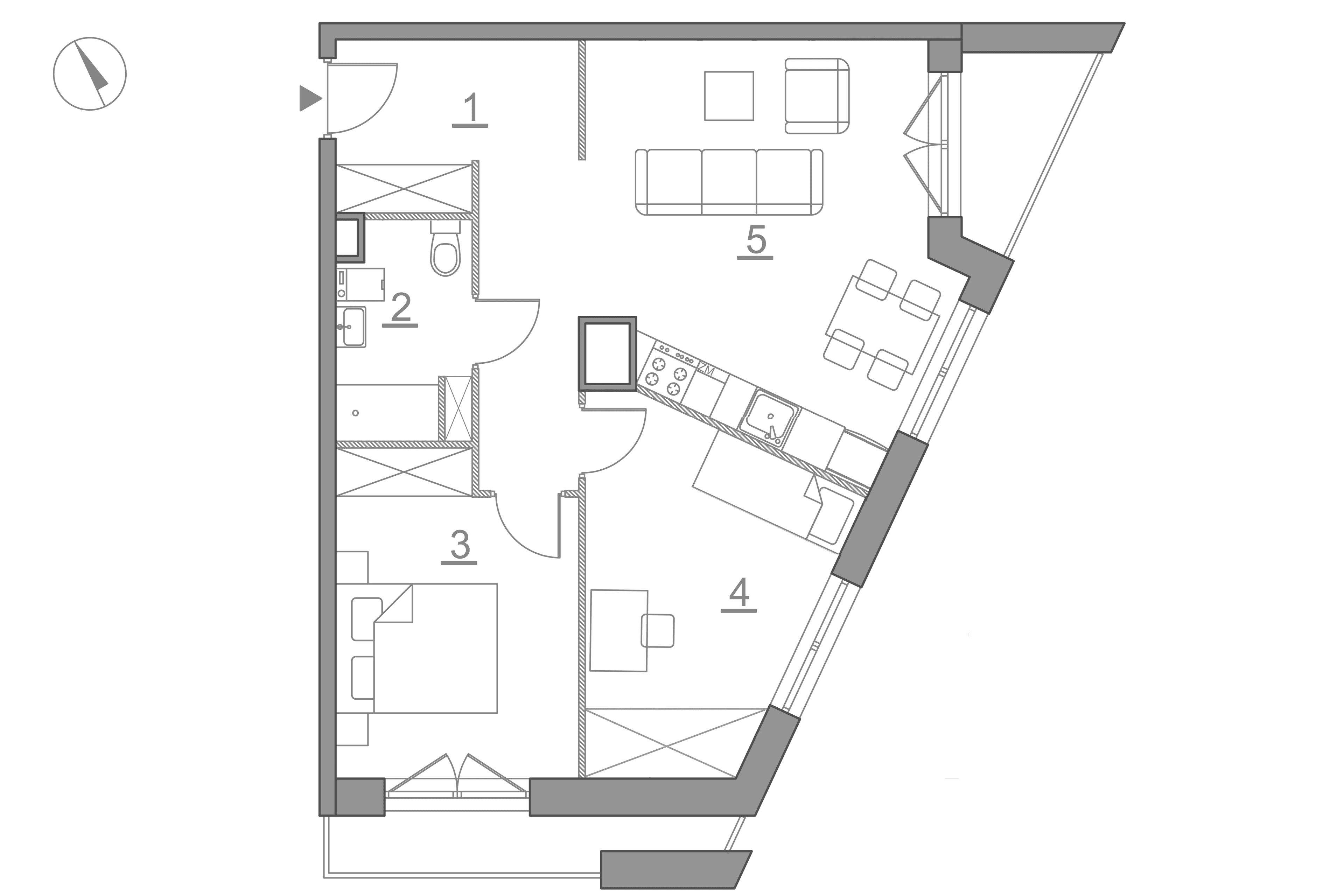
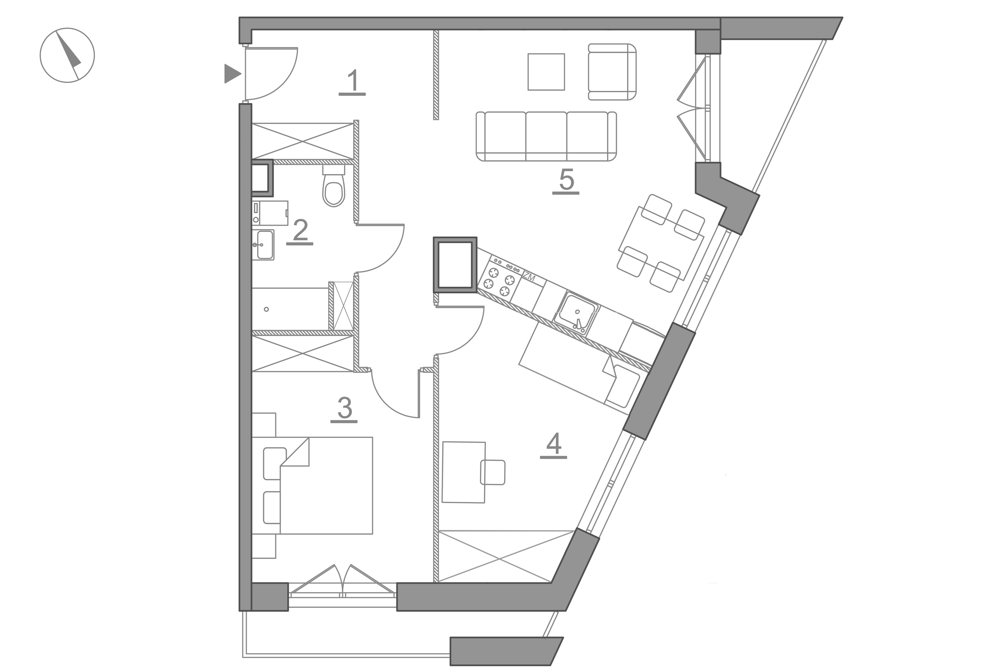
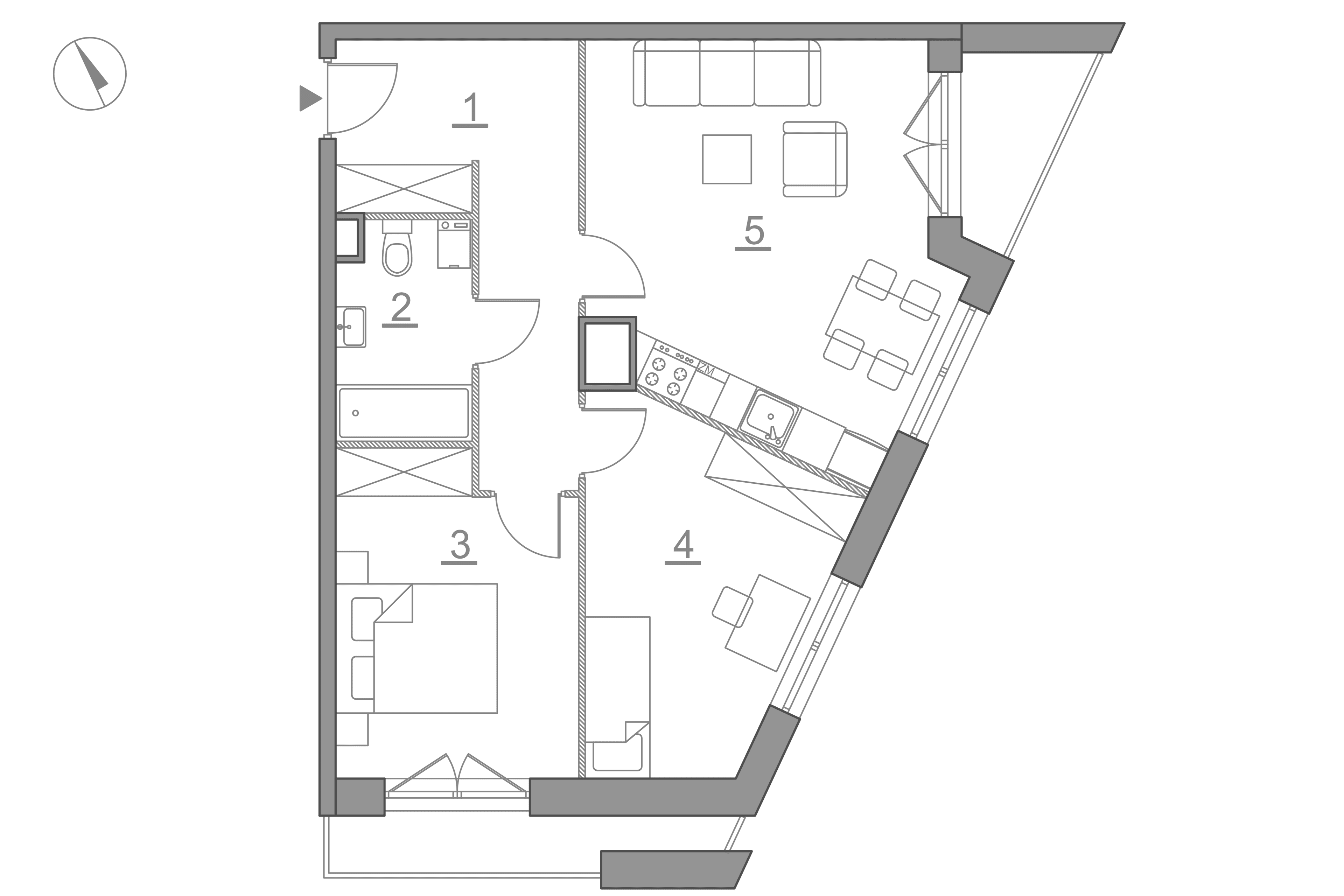
Lista pomieszczeń
1. Przedpokój
10,43
2. Łazienka
4,34
3. Pokój
11,36
4. Pokój
11,89
5. Pokój z aneksem kuchennym
20,06
6. Loggia
2,73
7. Loggia 2
3,43
1. Przedpokój
10,43
2. Łazienka
4,34
3. Pokój
11,36
4. Pokój
11,89
5. Pokój z aneksem kuchennym
20,06
6. Loggia
2,73
7. Loggia 2
3,43
Slide 1 of 33
slide
slide
slide
slide
slide
slide
slide
slide
slide
slide
slide
slide
slide
slide
slide
slide
slide
slide
slide
slide
slide
slide
slide
slide
slide
slide
slide
slide
slide
slide
slide
slide
slide
slide
slide
slide
slide
slide
slide
slide
slide
slide
slide
slide
slide
slide
slide
slide
slide
slide
slide
slide
slide
slide
slide
slide
slide
slide
slide
slide
slide
slide
slide
slide
slide
slide
slide
slide
slide
slide
slide
slide
slide
slide
slide
slide
slide
slide
slide
slide
slide
slide
slide
slide
slide
slide
slide
slide
slide
slide
slide
slide
slide
slide
slide
slide
slide
slide
slide
Całe piętro
lokale wolne
lokale niedostępne
lokale zarezerwowane
lokal w promocji
wybrany lokal
Copyright © 2026 - Grupa Deweloperska START
Zadzwoń do nas: 12 300 40 00